Freitextsuche
Impressum
Gewerbepark
Aktuelles
Standort
Angebote
Kontakt
Anfahrt
Branchenverzeichnis
Datenschutz
HaidEnergie
Gewerbepark
|
Aktuelles
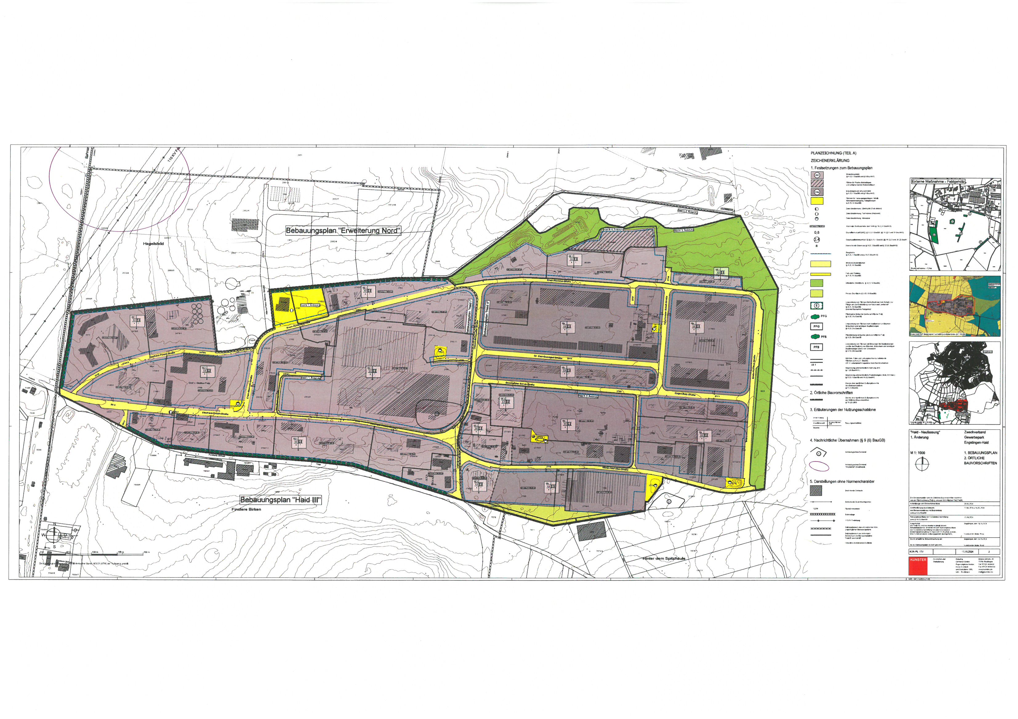
Bebauungsplan "Haid - Neufassung" Erste Änderung Satzungsbeschluss
Links zum Download
Download-Link der Bebauungsplan-Unterlagen
Kontaktadresse
zum Download der Gesamtunterlage (Lesefassung)
(5,3
MiB
)
Zweckverband Gewerbepark
Engstingen-Haid
Graf-von-Moltke Platz 1
72829 Engstingen
Deutschland
Telefon
+49 7129 / 73 16
Telefax
+497129 / 93 20 06
E-Mail
info@gewerbepark-haid.de
Zur bequemen Kontaktaufnahme steht Ihnen unser unser
Kontaktformular
zu Verfügung.
zum Download des Planteils (Lesefassung)
(1,001
MiB
)
zum Download des Planteiles (Detailqualität)
(9,183
MiB
)
Sonstiges
Für Fragen steht Ihnen der Geschäftsführer des Zweckverbands, Herr Wolfgang Triebs, gerne zur Verfügung.
Graf-von-Moltke Platz 1
72829 Engstingen
Deutschland
Zum Seitenanfang