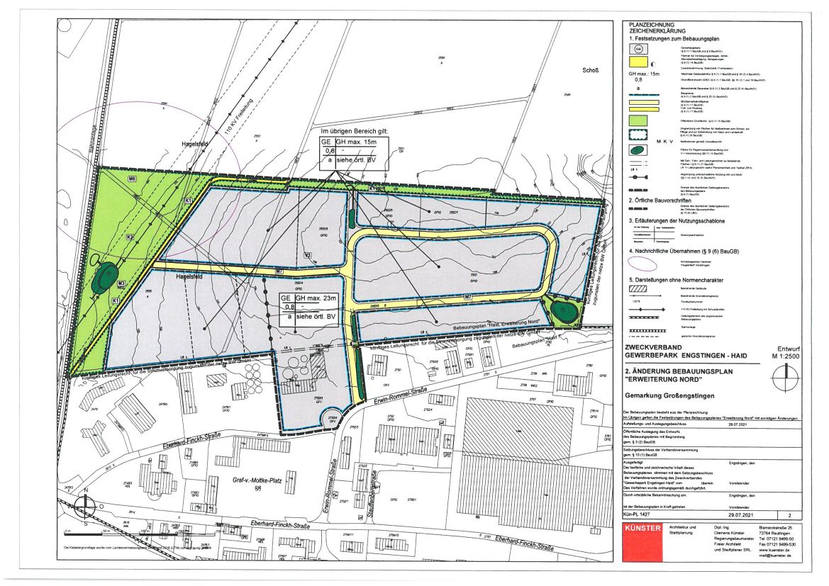
2. Änderung Bebauungsplan "Erweiterung Nord"
Download-Link der Bebauungsplan-Unterlagen
Sonstiges
Für Fragen steht Ihnen der Geschäftsführer des Zweckverbands, Herr Wolfgang Triebs, gerne zur Verfügung.
Kontaktadresse
Zweckverband Gewerbepark
Engstingen-Haid
Graf-von-Moltke Platz 1
72829 Engstingen
Deutschland
Telefon +49 7129 / 73 16
Telefax +497129 / 93 20 06
E-Mail info@gewerbepark-haid.de







