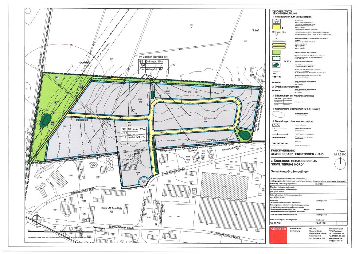
2. Änderung Bebauungsplan "Erweiterung Nord"

Download-Link der Bebauungsplan-Unterlagen Kontaktadresse
zum Download (PDF,3,9 MB) Zweckverband Gewerbepark
Engstingen-Haid
Graf-von-Moltke Platz 1
72829 Engstingen
Deutschland

Telefon +49 7129 / 73 16
Telefax +497129 / 93 20 06
E-Mail info@gewerbepark-haid.de

Zur bequemen Kontaktaufnahme steht Ihnen unser unser Kontaktformular zu Verfügung.
 
Sonstiges
Für Fragen steht Ihnen der Geschäftsführer des Zweckverbands, Herr Wolfgang Triebs, gerne zur Verfügung.
 
Die Unterlagen sind unter der folgenden Adresse vom 27.08.2021 bis 27.09.2021 barrierefrei ausgelegt:
Graf-von-Moltke Platz 1
72829 Engstingen
Deutschland